4件
-
4,190万円
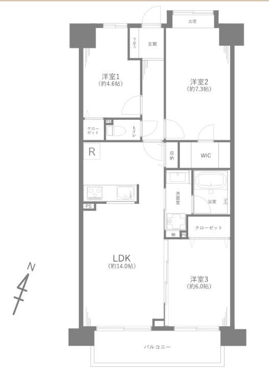
72.00㎡ (3LDK) /築27年
- ペット飼育可
- ペット相談
- リフォーム済
- ウォークインクロゼット
- 駐輪場
- システムキッチン
ペット可
こだわりポイント満載のアーベントハイム葛西臨海公園。7.12平米の広さのバルコニー面積となっています。犯罪防止効果のある、オートロック付きの物件です。4,190万円の物件価格で経済的にもゆとりのある生活が可能。江戸川区にある交通アクセスに便利な葛西臨海公園周辺でマイホームを手に入れませんか。住まい探しは地域に詳しい当社にお任せ下さい。
お急ぎでお引っ越し先を探す際には、即引渡しができる中古マンションが良いでしょう。中古マンションですが、綺麗に整備されているので住み心地良好です。ゆとりのある物件に住みたい方には、2LDKの間取りがオススメ。忙しい方におすすめの、駅徒歩3分の物件です。西葛西近辺で快適な暮らしをお求めなら、地域に詳しい当社にご依頼下さい。経験豊富な当社スタッフがしっかりとサポートいたします。