東大和市中央四丁目戸建

-

東京都東大和市中央4丁目1013-5

多摩都市モノレール「上北台」駅徒歩17分

西武拝島線「東大和市」駅徒歩20分

価格
-
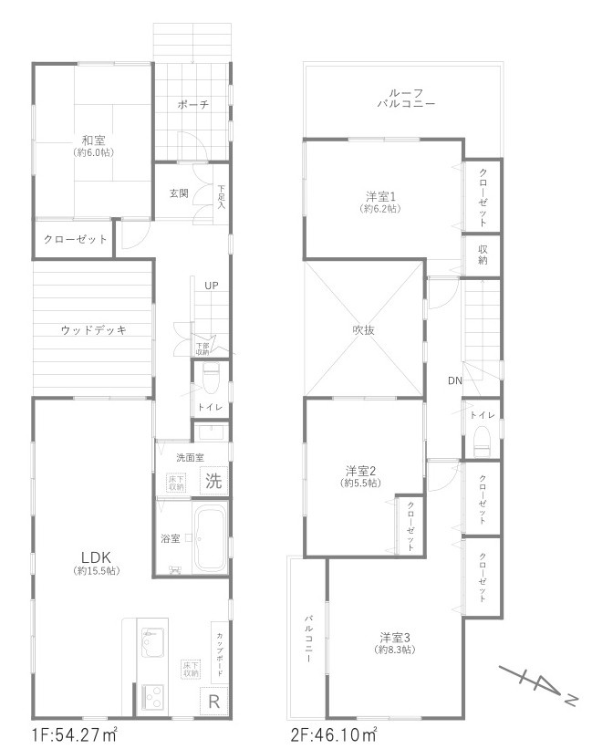
間取り/建物面積
-/-
所在地
東京都東大和市中央4丁目1013-5
築年
2014年7月(築11年)
交通

多摩都市モノレール上北台」駅 徒歩17分

西武拝島線東大和市」駅 徒歩20分

東大和市中央四丁目戸建の基本情報

物件名
東大和市中央四丁目戸建
価格
-
建物面積
-
土地面積
-(-)
築年月
2014年7月(築11年)
総戸数
-
所在地
東京都東大和市中央4丁目1013-5
交通

多摩都市モノレール上北台」駅 徒歩17分

西武拝島線東大和市」駅 徒歩20分

東大和市中央四丁目戸建の詳細情報

設備条件
設備(その他)
    -
土地権利
所有権
国土法届出
不要
用途地域
第一種低層住居専用
取引態様
仲介
引渡し
即時
備考
東大和市周辺にある物件をお求めの方は「東大和市中央四丁目戸建」はいかがでしょうか。一押しの土地面積156.77㎡(公簿)の物件です。開放的でゆったりとした街並みの第一種低層住居専用地域での生活はいかがですか。綺麗な室内の中古戸建て物件で素敵な日々をおくりませんか。住みやすい物件をお探しなら、信頼と実績のある当社にお任せ下さい。お客様のライフスタイルやご希望に適した物件をご紹介させて頂きます。

東大和市中央四丁目戸建のコメント(おすすめポイント)

建物がごちゃごちゃすることがない第一種低層住居専用地域なので、静かに快適に過ごすことができます。平坦地なので、擁壁・造成費用を削減できます。イチオシの土地面積156.77㎡(公簿)の土地です。中古の戸建て物件なので新築と比べて購入費用の低さが魅力です。上北台周辺の不動産を求めるなら、豊富な物件情報を取り扱う当社にお任せください。お客様のご希望条件に沿った不動産をご紹介させていただきます。

東大和市中央四丁目戸建

お気軽にお問い合わせください

LINEからお問い合わせ 無料お問い合わせ

株式会社ジャスティ

03-5944-0326

10:00~18:00

(休:水曜、日曜、祝日)