3件
-
- 都市ガス
- リフォーム済
- システムキッチン
- 浴室乾燥機
- 温水洗浄便座
- 追焚機能浴室
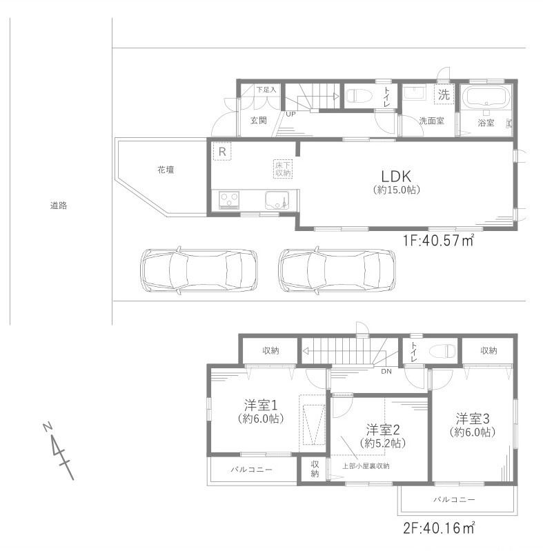
日照権が侵害されない第一種低層住居専用地域なので、安心して住まいを決めることができる物件です。余裕のある15帖以上のLDKで、日々の生活にゆとりが出ます。暖房機能を使えば寒い時期の室温差を抑えてヒートショックを防げる、浴室乾燥機付きの物件です。追い焚き機能付きで水道代の節約につながります。不動産を購入するなら、住環境は非常に重視するべき点です。西東京市は住み良い環境が整っているので、不動産を購入するにはお勧めの地域ですよ。
-
6,699万円
80.73㎡ (3LDK) /築15年
- 駐車2台可
- 都市ガス
- リフォーム済
- システムキッチン
- 温水洗浄便座
- 追焚機能浴室
三鷹市エリアでの住まいなら、住み心地も快適な「三鷹市牟礼七丁目戸建」はいかがでしょうか。103.51㎡(公簿)の面積を有する物件です。子どもの遊びスペースもつくれるLDK15帖以上の物件となります。平坦地の物件なので、ガーデニングを楽しんだり、畑をつくることもできますよ。不動産の購入は人生の中でも大きなお買い物だと言われています。そんな大きなお買い物で失敗しないためにも、購入をお考えの際は不動産のプロである当社スタッフにお任せください。
こちらのお住まいは2階部分にLDKがあります。幅広い層の方に好評の、4,790万円台の物件です。快適な住宅市街地を保護するために指定される第一種中高層住居専用地域の物件です。設備や周辺環境が整っている中古戸建てはいかがでしょうか。不動産購入をお考えの方は、西東京市に強い当社までご連絡ください。きっとお探しの条件に沿った住まいが見つかることでしょう。