8件
-
- リフォーム済
- システムキッチン
- 温水洗浄便座
- 浴室乾燥機
- 宅配ボックス
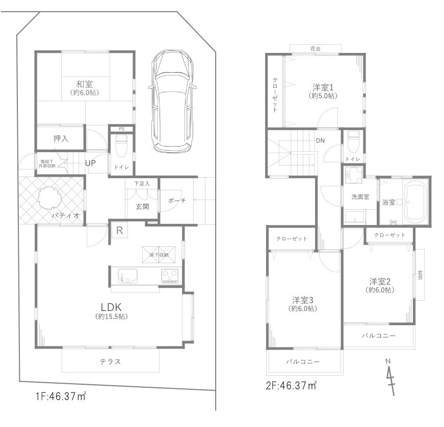
4,990万円で、住み心地も良くおすすめの物件です。直接会わずに宅配ボックスを通じて荷物を受け取ることで、配達業者を装う不審者に対する対策にもなります。4.09㎡のバルコニー面積の物件です。暖かみのある日差しが気持ちいい東南向きの物件です。当社は経験豊富なプロのスタッフが在籍しているので、安心して住まい探しをお任せください。失敗したくない不動産購入だからこそ、プロに任せてはいかがでしょうか。
-
- 都市ガス
- リフォーム済
- システムキッチン
- 食器洗い乾燥機
- 浴室乾燥機
- 温水洗浄便座
荻窪駅周辺への引っ越しをお考えなら「杉並区桃井一丁目戸建」。坂道がなく普段の移動も負担がかかりにくい平坦地です。一押しの101.98㎡(公簿)の物件。安らぎとゆとりを手に入れるための7,990万円です。当社では杉並区に特化した不動産情報をご紹介しております。地域情報などにも詳しいので、ぜひお気軽にお問い合わせください。
-
- ペット飼育可
- ペット相談
- リフォーム済
- システムキッチン
- 温水洗浄便座
- 浴室乾燥機
ペット可
浴室乾燥機付きの物件は、浴室乾燥機のスイッチを入れればすぐに湿気を除去できるためカビや雑菌などの発生が抑えられます。バルコニーの広さが10.01平米の物件です。内装リフォーム済のすてきな物件です。開放感溢れる室内が魅力の、4LDKの物件はこちらです。荻窪周辺にある不動産の購入をご検討してはいかがでしょうか。交通の利便性が高いため、快適な暮らしができます。ぜひお気軽にご連絡下さい。
-
- 都市ガス
- リフォーム済
- 浴室乾燥機
- 温水洗浄便座
- 追焚機能浴室
- 公共下水
杉並区エリアでの住まいなら、住み心地も快適な「杉並区桃井二丁目戸建」はいかがでしょうか。建物面積が75.95㎡でスペースが十分のファミリーにもおすすめの物件です。浴室追焚機能を上手に使えば、水道料金を抑えることができます。永く住む家だからこそこだわり抜いた7,499万円の物件をどうぞ。杉並区エリアや荻窪付近でなら、素敵な一戸建てに出会うことができます。まずはお気軽にお問い合せ下さい。
-
- バス・トイレ別
- バルコニー
- フローリング
- 電気有
- 都市ガス
- TVモニタ付インターホン
新生活を失敗せず、スタートさせたいならこちらの「新宿区船町アルテシモレフィナ」はいかがでしょうか。こちらは駅まで徒歩3分の中古マンションです。宅配ボックスがあれば直接荷物を受け取る必要がないので、宅配業者を装う人に対する防犯対策にもなり安心できます。オートロックの防犯設備が付いている安全性の高い中古マンションです。ご家族で有意義に暮らせるお住まいを、当社がご提案します。ご希望のエリアや条件など、どんなことでもお申し付けください。全力でサポート致します。
-
5,399万円
69.95㎡ (2SLDK) /築6年
- 都市ガス
- リフォーム済
- カウンターキッチン
- 浴室乾燥機
- 温水洗浄便座
- 追焚機能浴室
新着情報:杉並区下井草三丁目戸建の空室情報ならコチラ。家族での大切な時間を過ごすリビングがある2SLDKはいかがでしょうか。ガーデニングを楽しんだり、畑をつくることもできる平坦地の物件です。ニーズの高い設備である追焚機能が付いている浴室になります。不動産の購入は大きなお買い物です。そこで失敗しないためにも、不動産のプロである当社スタッフまでお気軽にお問い合わせください。
ぜひ一度見ていただきたい、「リビオレゾン大手町」です。駅から徒歩6分の物件です。地上13階建てで、住みやすい物件です。バルコニーの広さが5.78平米の物件です。千代田区にある交通アクセスに便利な神田周辺でマイホームを手に入れませんか。住まい探しは地域に詳しい当社にお任せ下さい。