2件
-
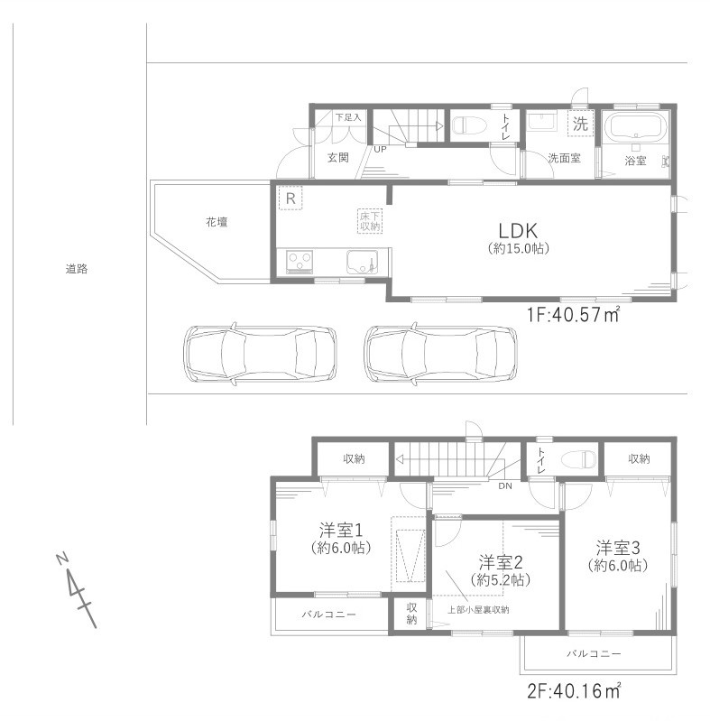
6,899万円
80.73㎡ (3LDK) /築14年
- 駐車2台可
- 都市ガス
- リフォーム済
- システムキッチン
- 温水洗浄便座
- 追焚機能浴室
ご家族がいる方にとっては浄水器があると何かと安心できますよ。浴室に窓があれば空気の入れ替えができてカビが防げるので、浴室に窓があるか確認してみましょう。高層ビル・マンションや、土地に余裕のない大規模な建物が建ちにくい第一種低層住居専用地域の物件です。オープンな雰囲気でゆったりとくつろげる、15帖以上のLDKとなっております。住環境が良好だと、自然と気持ちにゆとりが生まれませんか。住まいには人の心までも左右する大きな力があるのです。そんな重要なお住まい探しだからこそ、当社にお任せ頂きたいのです。ぜひご検討ください。
西東京市南町一丁目戸建:田無駅にも近くて便利。浴室乾燥機付きの物件なので、外干しできないときも居室の一部を物干しスペースにしなくて済みます。買い物の運搬が楽になりやすい平坦地の物件はこちらです。友人が集まる場としてもぴったりな、15帖以上のLDKとなっております。不動産の購入は大きなお買い物です。そこで失敗しないためにも、不動産のプロである当社スタッフまでお気軽にお問い合わせください。